西藏拉萨拉盆地第四系沉积及演化特征浅析
(中国地质调查局军民融合地质调查中心, 成都 610036)
摘要: 拉萨盆地为拉萨-日多弧间盆地的重要组成部分, 盆地内第四系较为发育且成因类型众多。分析该盆地内第四系物质组成、沉积特征及沉积环境等, 对研究青藏高原的演化历史具有重要意义。区内第四系主要为上更新统-全新统地层, 上更新统为冰碛沉积, 全新统为冲积、洪冲积、洪积、沼泽堆积及河床、河漫滩、河心滩沉积和风成砂堆积; 沉积相主要有冲积相、洪积相、风积相和冰碛相几个大类。通过野外实测地质剖面并结合前人钻孔资料分析, 对该区第四系进行研究, 初步建立了它们各自的沉积序列及相对新老关系。盆地内不同成因沉积物除了受区域构造运动影响外, 与区域内第四纪气候变化过程关系也非常密切, 特别是晚第四纪, 不管是河流冲积物还是高山冰 碛物的演化都与区域气候波动过程紧密相关。
DOI: 10.48014/cesr.20241225001
引用格式: 詹纯, 何涛, 梁军, 等. 西藏拉萨拉盆地第四系沉积及演化特征浅析[J]. 中国地球科学评论, 2025, 4(1): 1-12.
文章类型: 研究性论文
收稿日期: 2024-12-25
接收日期: 2025-01-06
出版日期: 2025-03-28
0 引言
拉萨盆地是位于西藏自治区中南部的弧内盆地,其地处冈底斯板块腹地,南部为冈底斯山脉,北部为念青唐古拉山脉[1](图1)。研究区被拉萨河分为东、西两部分,由于拉萨河构成本地区的主干河流,因此两侧由支流所塑造的地形地貌特征,具有明显的近似性。盆地内第四系较为发育,成因类型众多,其地形地貌受大地构造、新构造运动和外应力作用影响,形成现代复杂的高原地貌。作为区域上拉萨-日多(墨竹工卡县)中侏罗世-白垩纪的弧间盆地的组成部分,盆地内沉积物的形成和演化是青藏高原大陆动力学研究的重要组成部分,也记录了该区域丰富的地质历史和古气候、古环境变迁[2]。拉萨盆地的古地理条件具有独特性和复杂性,其地理位置、沉积环境和演化等方面的特征为我们提供了宝贵的研究资料。
1 地形地貌特征
盆地内第四系较为发育,成因类型众多,其地形地貌受大地构造、新构造运动和外应力作用影响,形成现代复杂的高原地貌。
从地貌-第四纪地层分区图(图2)可看出,研究区典型呈垂直地貌分带特征。根据地貌形态和第四纪地层分布的差异,从高到低,将研究区划分为四个不同地貌区域,分别为古冰川刻蚀高山区、侵蚀切割中山区、冲洪积沟谷区和加积宽谷区。横贯于研究区中南部的冈底斯山系,是区内最大的地貌单元。其中海拔5600m以上的山峰达97座,均分布在研究区西部,部分山峰终年积雪,并发育现代冰川[3]。最高山峰位于研究区西北角吉普日山峰,海拔5918m。区内高山海拔大多在5000m之上,这些高原山峰、雪山及现代冰川构成了研究区特有的高原地貌景观。
区内水系主要有拉萨河及堆龙曲。拉萨河呈北东-南西向贯穿整个研究区,河谷宽敞,谷底平直,为加积宽谷区,谷宽达3~5km,区内河床海拔高度3600~3680m。形成繁多不定式辫状水流岔道,河床两侧发育Ⅰ-Ⅱ级冲积阶地,并以Ⅰ级冲积阶地为主。山谷支流宽,多由冲积-洪积混合型沉积物组成。支谷内山前洪积扇十分发育,多构成10~25m台地。

图1 研究区大地构造位置
Fig.1 Geotectonic location of the study area

图2 研究区地貌-第四纪地层分区略图
Fig.2 Geomorphologic-Quaternary stratigraphic zoning sketch of the study area
研究区冰川主要位于海拔5000m以上的高山区,在研究区零星发育现代冰川[2]。古冰川遗迹主要分布在冰川U型谷、悬谷、角峰、冰斗、源头宽谷盆地[4]、冰斗湖、冰碛堰塞湖及侧碛、终碛台地附近。除U型谷、冰斗壁和角峰等被近代崩塌堆积覆盖或圆化外,冰蚀地形外貌均保存完好,尤以阴坡冰蚀地貌保存更佳。U型谷多为各支流水系源头,与下游U型河谷衔接较好,普遍保留高差达几十米的悬谷型裂点,而且该类悬谷均保持在海拔4800~5000m之间。受构造作用影响,U型谷呈羽状排列,构成线状中心或放射状古冰川,并形成纳普日-隆沙拉,明朱则日-孜隆拉等地封闭湖盆,湖盆周围多为中高丘陵,地形起伏相对较平缓。区内湖泊的主要成因是新构造运动,加之冰川作用、泥石流堵塞,形成了现代高原湖泊地貌[5]。
除上述冰川、河流地貌外,研究区内尚有风成砂、坡积物、沼泽堆积等零星分布。风成砂多见于拉萨河各支谷口地带,常以新月形沙丘、沙丘链、沙垅等形式覆盖在山坡上部与谷坡山麓带及拉萨河岸两侧。沼泽沉积分布于堆龙德庆县南嘎、桑达、东嘎,拉萨市哲蚌寺东侧及蔡公堂等地,多位于拉萨河Ⅰ级阶地中。
2 盆地第四系沉积特征
研究区第四系主要分布于拉萨河谷及堆龙曲、热堆、桑达、柳吾、白定、多雄朗等主干支流和马央囊、纳普囊、多嘎拉、孜隆拉等古冰川及现代冰川活动区。区内出露冰碛沉积、冲积、洪冲积、洪积、沼泽堆积及河床、河漫滩、河心滩沉积和风成砂堆积,其成因类型划分见(表1)。
表1 第四系成因类型划分表
Table 1 Classification of Quaternary genesis types

2.1 上更新统冰碛层
主要分布在拉萨盆地西部的马央囊、德拉雄、纳普囊、央贞囊一带和研究区东部多嘎拉、章杰拉、孜隆拉等地。受海拔高度控制,冰川终碛垄的阻塞,在其内侧常形成沼泽洼地和相关堆积,局部会有古冰川堰塞湖残留。以拉萨市色囊沟实测地质剖面为例来分析该区的冰碛物序列和沉积特征。实测剖面位于拉萨市明朱则日西侧色囊沟,海拔高程4891m,全长约4.8km。通过剖面路线观测,根据地貌切割和覆盖关系判断,从老到新,可划分出五套冰碛层(图3),其基岩为二长花岗岩体与玄武岩。
通过地表调查和地形图与遥感图判读发现,研究区类似古冰川谷地中冰碛物除由于古冰川谷规模的不同,不同期次冰碛物分布范围和海拔高度有所差异外,它们构成的地貌特征、岩性特点与色囊沟冰碛物序列都极为相似。因此,可将色囊沟剖面作为研究区第四纪冰川沉积物的典型代表。由上述剖面可知,该高山地区至少经历5次冰进阶段。

图3 拉萨色囊沟第四纪冰碛层实测剖面图
Fig.3 Measured section of Quaternary moraine layer in Sesanggou,Lhasa
地表调查表明,在研究区海拔4800~5000m以上的古冰川谷地中保留5套冰碛物,可代表5次冰进过程(从早到晚可分别称之为色囊冰川阶段Ⅰ、Ⅱ、Ⅲ、Ⅳ、Ⅴ)。而根据冰碛物距离现今谷地尽头的距离、分布范围与规模、地表切割深度以及冰碛物顶部土壤层发育程度和特征等,可将它们大致归为三期冰川作用过程。其中最早期的冰川作用对应冰碛层Ⅰ,该期冰川规模最大,现今冰碛物已被河流切割了50~60m左右,表明形成时间最长。由于暂时缺少绝对年龄控制,根据区域对比认为,可能相当于倒数第二次冰期(即基龙寺冰期)或末次冰期(即绒布寺冰期)的早冰阶,尚需今后更详细的年代学研究确定。第二次冰川作用对应冰碛层Ⅱ和Ⅲ,冰碛层Ⅱ-Ⅲ所构成的冰期地貌特征相似,两道冰川终碛垄相距不远,且海拔高度相近,因此可归为一期。该期包含了两次冰进过程;该期冰碛层被河流切割较浅,一般为5~15m左右,表明它们形成较晚,两套冰碛层的测年结果证实了这一点,它们热释光测年(Thermoluminescence,简称TL)年龄为18~12.5kaBP,指示其大致形成于末次冰期的晚冰阶。最晚的冰川作用过程对应冰碛层Ⅳ和Ⅴ,这两套冰碛物地貌特征类似,距离现代沟谷尽头最近,也最为新鲜,地表几乎没有切割,表明它们形成最晚,TL年龄表明期限形成于约7.8~4.4kaBP(表2)左右的全新世期间。
表2 研究区第四纪冰碛沉积物TL结果一览表
Table 2 List of thermoluminescence dating results of Quaternary moraine sediments in the study area
|
样品号 |
采样点 |
地貌部位 |
岩性 |
方法 |
年龄/kaBP |
|
0712-1 |
拉萨色囊沟 |
冰碛层Ⅱ,砾石层与上覆砂土层接触处 |
中细砂 |
TL |
18.0 |
|
0712-2 |
拉萨色囊沟 |
冰碛层Ⅲ,砾石层与上覆砂土层接触处 |
细砂 |
TL |
12.5±1.1 |
|
0712-3 |
拉萨色囊沟 |
冰碛层Ⅳ砾石层与上覆砂土层接触处 |
中细砂 |
TL |
7.8±0.7 |
|
0712-4 |
拉萨色囊沟 |
冰碛层Ⅴ砾石层与上覆砂土层接触处 |
中粗砂 |
TL |
4.4 |
2.2 上更新统一全新统
研究区分布范围广泛,面积261.3km2,约占研究区总面积的14.59%[6]。沉积类型繁多,但以冲积、洪冲积为主,其他次之。
2.2.1 冲积阶地
分布于拉萨河谷及其支流堆龙曲、桑达、柳吾、白定及白纳等河谷中。拉萨河与堆龙曲河谷地势平缓,河床宽敞,两侧发育有宽阔的河漫滩,并发育Ⅰ-Ⅱ级冲级阶地,但以一级冲积阶地最为发育。而其他支流河谷中,则发育比高1~10m的Ⅰ-Ⅲ级冲积阶地。
拉萨河谷平原极厚,据拉萨市钻孔和电测深资料(图4),拉萨河谷的冲积层厚度400~500m。说明拉萨河谷曾深切至海拔3200m的高度。同时显示该段河谷长期以来处于加积过程中,并形成现今开阔的河谷和展布其中的河心滩、河漫滩和低阶地等地貌景观。

图4 拉萨河谷电测深推断基岩埋深剖面图
Fig.4 Bathymetric profile of bedrock inferred by electric bathymetry in Lhasa valley
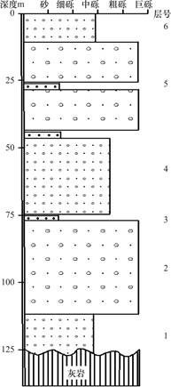
考虑到拉萨河为最深可达400~500m加积河谷,为更全面地揭示该区冲积层的结构和特点,参考西藏地质局综合地质队(1975年)的钻孔资料ZK1剖面[2],所揭示的拉萨河冲积层剖面特征(图5),揭露该段河谷进入加积的过程相当早,以致早期的阶地或被埋藏或被侵蚀破坏而不复存在。
1)达孜县桑珠林村拉萨河第四系Ⅰ级阶地实测剖面(图6),其基本层序为(图7):
(4)上部为褐黄色腐殖层;下部为浅土黄色粉砂质粘土层,为农业用地。厚0.3m
(3)浅黄色粉砂质细砂层。呈弱固结状态。厚0.7m
(2)褐黄色细砂质粗砾石层。磨圆度与分选性较好,略呈叠瓦状排列,固结状态弱。厚0.2m
(1)褐黄色细卵石粗砾石层,砾石磨圆、分选好,呈弱固结状态。厚>0.5m
2)拉萨市城关区白定第四系冲积阶地实测剖面(图8)。剖面位于拉萨市城关区白定村,其层序自上而下为:
(3)Ⅰ级冲积阶地
阶地平整,高于河床1m。上部由厚0.3m的褐黄色粉砂质粘土层组成;下部由粗砂质粗砾石层组成,具明显冲积二元结构特征。厚1~2m

图5 拉萨河ZK1钻孔所揭示的拉萨河冲积层剖面图
Fig.5 Lasa River alluvial profile revealed by drill hole ZK1 in the Lasa River

图6 达孜县桑珠林村拉萨河第四系Ⅰ级阶地实测剖面图
Fig.6 Measured profile of the fourth system of Lhasa River,class I terrace,Sangchulin village,Dagtse County

图7 第四系Ⅰ级阶地实测剖面柱状图
Fig.7 Histogram of measured profiles of Quaternary I terraces
(2)Ⅱ级冲积阶地
阶地较平整,高于河床7m,上部由厚2m的褐黄色粉砂质粘土层组成,多为耕地;下部由褐黄色砂砾石层组成,砾石分选、磨圆较好,自下而上略具递变层理,呈弱固结状态,具明显冲积二元结构特征[2]。厚7~10m
(1)Ⅲ级冲积阶地
阶地较平缓,高于河床10m。顶部由厚0.3m的褐黄色粉砂质粘土层组成,多为耕地,中、下部由砂砾石层组成,砾石磨圆、分选较好,向上略具正向递变,呈半固结状态,具明显的冲积二元结构特征。厚10~15m
其下基岩为灰绿色绿泥石英片岩、灰绿色石英岩。
3)堆龙德庆县桑达乡惹工第四系冲积阶地实测剖面(图9),位于堆龙德庆县桑达乡惹工(起点坐标:91°04'56″E、29°32'32″N,终点:91°05'36″E、29°32'47″N)。其层序为:
(3)Ⅰ级冲积阶地
阶地较为平整,高于河床1.2m。上部为褐黄色粉砂质粘土层,多为耕地;下部由粗卵石层组成,结构松散,具明显的冲积二元结构特征。厚2m
(2)Ⅱ级冲积阶地(图10)
阶地较为平整,高于河床6m:
④ 褐黄色含砾粉砂质粘土层,多为农作物覆盖区。厚0.5m
③ 褐黄色砾石层,砾石磨圆度一般,分选性中等,整体呈弱固结状态。厚0.9m
② 褐黄色含砾石细卵石层。砾石磨圆较好,分选较好,略具叠瓦状构造,呈弱固结状态。厚2.4m
① 褐黄色含卵石砾石层。砾石磨圆度差,分选性较差,固结状态较弱。厚2.2m
阶地具明显的冲积二元结构特征。厚6~10m
(1)洪冲积阶地
为一向西缓倾斜的扇状台地地貌,高于河床30m。上部由褐黄色含砾粉砂质粘土层组成;下部由碎石、砂砾层组成,具有扇根、扇中、扇缘的沉积地貌特征。厚>30m
综上所述,研究区最为发育、分布范围广泛的为Ⅰ级冲积阶地,其次为Ⅱ级冲积阶地,Ⅲ级冲积阶地仅在研究区东部白定、白纳沟谷内见有少量分布。研究区冲积阶地均有冲积二元结构特征。

图8 拉萨市城关白定第四系冲积阶地实测剖面图
Fig.8 Measured profile of the Quaternary alluvial terrace at Chengguan Baiding,Lhasa City

图9 堆龙德庆县桑达乡惹工第四系冲积阶地实测剖面图
Fig.9 Measured profile of alluvial terrace of the Quaternary system in Jagong,Sanda Township,Dulongdeqing County
2.2.2 洪积
洪积物见于拉萨河、堆龙曲两侧流程短与径流不稳定的支流河谷中。由于区内气候干燥,松散坡积物较发育,每年在雨季洪流作用下,于支流叉谷口处堆积形成洪积扇。其沉积物由各种大小不等的碎石、角砾及砂土混杂堆积组成,偶夹粉砂质粘土层或透镜体,在平面上有分带现象,地貌扇状形态亦较明显。一般在洪积扇的底部为较细粒的碎屑堆积物,而顶部为中粗粒的碎屑堆积物,厚度几米至几十米不等。此外,研究区内部洪积扇堆积物具有多次重复沉积特点,现以达孜县桑珠林曲龙北西洪积扇沉积物素描剖面为例(图11),由上至下描述如下:
(6)浅土黄色含中粗砾粉砂质粘土层,其结构较紧密,呈弱固结状态。厚0.5m
(5)褐灰色、灰绿色碎石、砾石层,分选差、磨圆差,形态极不规则,棱角状,泥砂质充填,弱胶结,较紧密堆积[7]。厚0.3m
(4)土黄色含中粗砾粉砂质粘土层,呈弱固结状态,结构较紧密。厚0.4m
(3)灰绿色、褐灰色碎石、砾石层,无分选,泥砂质充填,呈弱固结状态,较紧密堆积。厚0.3m
(2)土黄色含中粗砾粉砂质粘土层,呈弱固结状态,结构较紧密。厚0.65m
(1)灰绿色、褐灰色碎石、砾石层,砾石无分选,为棱角状,形态极不规则,泥砂质充填,呈弱固结状态,较紧密堆积,未见底。厚>0.55m
由剖面素描图可看出,具典型的洪积扇沉积和重复沉积特征。
2.2.3 洪冲积
主要发育于拉萨河、堆龙曲支流上游河谷中,部分延伸至支流下游谷口,地貌呈山前倾斜平原,具有扇状台地形态特征。经后期不同程度改造,呈比高不等的阶梯台地地貌。其海拔高度一般在3700~4500m间。现以堆龙德庆县桑达乡惹工洪冲积实测剖面(图12)为例:

图10 堆龙德庆县桑达惹工Ⅱ级冲积阶地剖面柱状图
Fig.10 Histogram of the profile of the Sangda Jagong II alluvial terrace in Dulongdeqing County

图11 达孜县桑珠林曲龙北西洪积剖面素描图
Fig.11 Sketch of the north-west flood profile of Sangchulin Qulong,Dhazi County

图12 堆龙德庆县桑达乡惹工洪冲积实测剖面图
Fig.12 Measured profile of Jagong flood alluvial deposits in Sanda Township,Dulongdeqing County
该剖面位于堆龙德庆县桑达乡惹工(91°05'11″E、29°32'42″N)。
(4)褐黄色含砾粉砂质粘土层,呈弱固结状态。厚0.5~0.8m
(3)褐黄色碎石、砾石层。砾石磨圆呈棱角-次棱角状,分选差,砂泥质充填,呈半固结状态。厚6m
(2)黄褐色砾石层与黄褐色细砂层互层,共同组成十个韵律,向上单个韵律厚度逐渐变薄,砾石层横向延伸不稳定,个别砾石层在横向上时薄时厚,砾石向上具正向递变;砂层一般均较稳定,略显平行层理,二者为突变接触,均呈半固结状态。厚11.5m
(1)黄褐色砾石层。砾石分选较差,磨圆为棱角-次棱角状,砂泥质充填,呈弱固结-半固结状态。厚8m
由图12中可看出,洪冲积具有典型的扇形沉积地貌特征。下部为河谷短暂性洪流形成的洪冲积物,砾石成层性好,分选性差,磨圆度差,以砂泥质充填胶结,结构较松散,具扇底粗粒相沉积特征;中部砂砾层,砾径相对较小,并具有较好的分选性,下粗上细,为砾石层与细砂层互层,细砂层中略显平行层理,其结构较松散,具扇中洪冲积沉积特征;上部为含砾粉砂土层,具扇缘相沉积特征。研究区洪冲积物均具上述特征。
2.2.4 沼泽湿地
区内沼泽湿地较发育,主要见于拉萨市蔡公堂乡、拉萨市拉鲁、堆龙德庆县东嘎、桑木及桑达三零八部队农场等地,均分布在拉萨河一级阶地后缘阶面或洪积扇前缘,此外在拉萨河主干支流堆龙曲一级阶地上也见有分布。均为粉砂、粘土、腐殖泥类沉积。较典型的为拉萨市拉鲁湿地。
2.2.5 风成砂堆积
区内风成砂主要见于柳吾-热堆一带,沿拉萨河两侧分布,多与河谷的风向相关,在拉萨河部分支流谷口开阔地较为发育。所见风成砂地貌类型有:新月形沙丘、沙丘链、沙垅、沙包等。其中以沙丘分布较广,覆盖在河心滩、河漫滩阶地、洪积扇之上。在桑达三零八部队农场一带拉萨河岸边可见有少量的新月形沙丘与沙丘链;而在柳吾一带,部分风成砂扬至海拔3800~4200m的谷坡上,形成较大的沙坡。
2.2.6 冲积
分布于拉萨河、堆龙曲及其支流流域,多为Ⅰ、Ⅱ级阶地的组成物,在部分支流宽谷中,与洪积扇前缘呈缓坡度相接,组成冲-洪混合堆积。
2.2.7 河心滩、现代河床、河漫滩
分布于拉萨河与堆龙曲流域,由于河谷地势平缓,河床平直,发育有宽阔的河心滩、河漫滩,一般高于河床2~10m左右。主要由现代冲积砂砾石、卵石、细砂及砂土等组成。
3 年代地层划分与地层对比
通过盆地内不同类型第四纪沉积物进行地表观察和剖面分析,初步建立了它们各自的沉积序列及相对新老关系,但要建立不同类型沉积物之间关系和地层地质年代序列则必须借助年代学测试、气候地层分析和区域对比等方法对该区的第四纪沉积物进行地层时代研究。这里主要以地貌特征对比和气候地层分析为基础,同时借助于TL年代学手段,首先对上述不同类型的第四纪沉积物进行年代学研究(表3),然后进行地层划分、对比并建立研究区年代地层序列(图13)。
表3 拉萨地区第四纪沉积物TL结果一览表
Table 3 List of thermoluminescence dating results of Quaternary sediments in Lhasa area
|
样品号 |
采样点 |
地貌部位 |
岩性 |
方法 |
年龄/kaBP |
|
0705-1 |
达孜县邦堆 |
拉萨河T1冲积层与上覆洪积扇接触面处 |
细砂 |
TL |
3.8±0.3 |
|
0705-43 |
达孜县日阿 |
拉萨河支谷T1砾石层与上部粉砂层接触面 |
粉砂 |
TL |
2.3±0.2 |
|
0712-4 |
拉萨色囊沟 |
冰碛层Ⅴ,砾石层与上覆砂土层接触带处 |
中粗砂 |
TL |
4.4 |
|
0712-3 |
拉萨色囊沟 |
冰碛层Ⅳ,砾石层与上覆砂土层接触带处 |
中细砂 |
TL |
7.8±0.7 |
|
0712-2 |
拉萨色囊沟 |
冰碛层Ⅲ,砾石层与上覆砂土层接触带处 |
细砂 |
TL |
12.5±1.1 |
|
0712-1 |
拉萨色囊沟 |
冰碛层Ⅱ,砾石层与上覆砂土层接触带处 |
中细砂 |
TL |
18.0 |

图13 研究区内第四纪地层划分对比图
Fig.13 Comparison of Quaternary stratigraphic divisions in the study area
4 沉积演化
在年代地层基础上,以冰期变化为主线,同时参考区域资料,可大致概括出该区的第四纪古气候、古环境和古地理变化过程。但由于本区的地层发育不全,特别是缺少早期的地质记录。因此,这里对早期地质事件仅是简单推断,而将重点研究晚第四纪(约200kaBP以来)期间的第四纪演化过程。
早更新世期间,青藏高原地区与北半球类似,经历了多期冷暖气候变化,同时还存在诸多断陷盆地。其中,部分盆地可能仍在湖泊发育过程中,而部分则已完成湖泊演化,进入谷地切割阶段。由于这些谷地位于断陷盆地边缘的河谷流域,且为调整高原隆起后与外界的巨大地势差,研究区的大部分河流在此期间均处于侵蚀切割状态,拉萨河谷地也处于深切过程中,呈现出谷深山高的深切峡谷地貌。至中更新世,高原内部的高山地带开始出现冰川作用,河流上游的物源供应增加。同时,随着高原内部近南北向构造裂谷的发育,拉萨河谷地与雅鲁藏布江中游宽谷地带为调节地壳变形而发生区域性地壳拗陷。拉萨河由此逐渐由强烈切割转变为加积过程,加积型河谷开始形成[2]。
到了中更新世晚期(约300~140kaBP),伴随倒数第二次冰期期间的气候变冷过程,研究区内高山区开始出现零星冰川,拉萨河谷持续加积,河床不断淤积填高,宽谷地貌开始显现。在随后约200~140kaBP或末次冰期早冰阶(约75~58kaBP)期间,伴随气候变冷,高山区冰川规模逐渐扩大至最大,进入色囊冰进Ⅰ阶段。之后,区域气候总体趋于干旱,冰川规模整体上处于退缩状态,同时河谷则处于持续加积过程中。在高山区发生了两次冰进:色囊冰进Ⅱ和Ⅲ,在后一次冰进期间,河谷源头物源明显增加,河谷中加积增强,堆积了厚层的粗-巨砾石层,河床不断拓宽。
在全新世冰后期,气候转为暖湿,导致高山区冰川逐渐退缩并最终大部分消失。这一时期经历了两次冷期,与全新世的8.2kaBP冷事件和新冰期相对应。与此同时,拉萨河谷及其支流谷地持续接受砾石层堆积,使河谷逐渐拓宽至当前形态。在晚期的一个显著暖湿阶段,由于河流切割作用增强,拉萨河及其支流发生了不同程度的下切,形成了拉萨河中的Ⅰ级阶地和支流中的Ⅱ级阶地及早期洪积扇。随后的河流加积过程则形成了现今的河漫滩、心滩、支谷中的Ⅰ级阶地及洪积扇堆积。据藏南地区的孢粉记录[8],在全新世期间,包含拉萨市区的藏南地区主要经历了三阶段的变化。在全新世早期(距今约13000—7500年),在经历了末次冰期冰盛期的干冷气候之后,区域内进入升温期,气候半干旱,较温凉。藏南地区发育稀树灌丛草甸植被,以桦木科-莎草科植物群为主,高山上有一些云杉和冷杉。这一阶段大致对应色囊冰川阶段Ⅳ,由于气候的整体转暖,高山冰川末端从以前海拔5000m左右不断退缩至此阶段海拔5100m左右,但冰川的停顿表明该阶段中存在气候波动,有过明显的冷期出现。全新世中期(距今约7500—3000年),是全新世阶段气候最宜期,藏南地区气候温暖半湿润,区域内一派森林灌丛草甸植被景观,桦木科和喜暖的阔叶树栎属、铁杉属等都明显增加,灌木植物蔷薇、杜鹃等种类繁多,湿地中草本植物遍地皆是。此阶段可大致对应于色囊冰川阶段Ⅴ,气候的明显转暖,导致冰川强烈后退,一些区域冰川在此阶段晚期可能已完全消失。此阶段冰川停顿也表明在该阶段晚期有过明显的冷期,可能与新冰期的到来有关。到全新世晚期(距今约3000年以来),气候又明显开始变干、变冷,进入温凉半干旱状态,木本植物明显减少,草本植物增加,且耐旱成分增多,以蒿属植物最为广布,以灌丛草原植被为主。这一阶段大致对应区域内拉萨河河漫滩和支流中Ⅰ级阶地的发育过程。
5 结论与建议
(1)初步对拉萨盆地内第四系进行了划分对比。根据前人研究,结合野外调查、测年结果对拉萨盆地内的第四系地层单元进行了厘定,建立了拉萨盆地第四系地层对比关系。
(2)初步对拉萨盆地第四系的沉积特征、沉积相与演化进行了分析。早更新世期间,青藏高原地区经历了多期冷暖气候变化,高原内部许多断陷谷地有的还处于湖泊发育中,有的已经结束湖泊演化,进入谷地切割期。中更新世晚期,研究区内高山区开始出现零星冰川,拉萨河谷持续加积,河床不断淤积填高,宽谷地貌开始显现。全新世冰后期,高山区冰川不断退缩,大部分最后消亡。
(3)拉萨盆地的沉积演化,并不是单一构造作用的结果,更多的是与气候变化因素相关。气候与构造活动是如何共同影响盆地的沉积演化还需进一步研究。
利益冲突: 作者声明无利益冲突。
[①] *通讯作者 Corresponding author:何涛,2449940032@qq.com
收稿日期:2024-12-25; 录用日期:2025-01-06; 发表日期:2025-03-28
参考文献(References)
[1] 张镱锂, 李秀彬. 拉萨城市用地变化分析[J]. 地理学报, 2000(4): 395-406.
https://doi.org/10.3321/j.issn:0375-5444.2000.04.002
[2] 陈陵康. 西藏拉萨地区第四纪古气候、古环境重建[D]. 武汉: 中国地质大学(武汉), 2008.
[3] 杨帆. 怒江-萨尔温江水文特征及其对气候变化的响应研究[D]. 北京: 清华大学, 2021.
https://doi.org/10.27266/d.cnki.gqhau.2021.000169.
[4] 王欣. 西藏羊八井盆地中晚更新世湖积地层时代厘定与环境变迁[D]. 武汉: 中国地质大学(武汉), 2013.
[5] 高红灿, 郑荣才, 柯光明, 等. 川西上侏罗统遂宁组沉积相特征[J]. 古地理学报, 2006(4): 467-476.
https://doi.org/10.3969/j.issn.1671-1505.2006.04.004
[6] 吴盈盈, 王振亭. 河套平原土壤风蚀风险评估[J]. 干旱区地理, 2023, 46(3): 418-427.
https://doi.org/10.12118/j.issn.1000-6060.2022.323
[7] 许欢, 柳永清, 刘燕学, 等. 阴山-燕山地区晚侏罗世-早白垩世土城子组地层、沉积特征及盆地构造属性分析[J]. 地学前缘, 2011(4): 88-106.
[8] 黄赐璇, 冯·康波·艾利斯, 等. 根据孢粉分析论青藏高原西部和北部全新世环境变化[J]. 微体古生物学报, 1996(4): 423-433.
Analysis of Characterization of Quaternary Sedimentation and Evolution in the Lhasa La Basin,Tibet
(Civil-Military Integration Center of China Geological Survey, Chengdu 610036, China)
Abstract: The Lhasa Basin is an important component part of the Lhasa-Rhido Interarc Basin, in which the Quaternary System is relatively developed and has many types of genesis. It is important to analyze the composition of the Quaternary, sedimentary characteristics and depositional environment in the basin to study the evolution of the Tibetan Plateau. The Quaternary in the area is mainly composed of the upper Pleistocene-Holocene, the upper Pleistocene for the moraine deposition, Holocene is mainly alluvial, flood alluvial, flood, swamp accumulation and modern riverbed, river floodplain, river beach sedimentation and wind sand accumulation; sedimentary phase mainly alluvial phase, flood phase, wind and moraine phase of several major categories. Through the field measurement of geological profiles and combined with the analysis of the former borehole data, the Quaternary stratigraphy in the area is divided and compared, and their respective depositional sequences and the relative relationship between the old and the new have been initially established. In addition to the influence of regional tectonic movement, the sediments of different genesis in the basin are also very closely related to the Quaternary climate change process in the region, especially during the Late Quaternary period, no matter it is the river alluvial deposits or alpine moraines, the evolution is closely related to the regional climate fluctuation process.
Keywords: Lhasa Basin, quaternary, sedimentation, evolutionary characteristics
DOI: 10.48014/cesr.20241225001
Citation: ZHAN Chun, HE Tao, LIANG Jun, et al. Analysis of characterization of quaternary sedimentation and evolution in the Lhasa La Basin, Tibet[J]. Chinese Earth Sciences Review, 2025, 4(1): 1-12.